アパホテル〈新大阪駅タワー〉
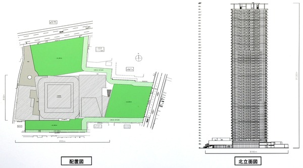
「アパホテル〈新大阪駅タワー〉」は新大阪駅近くの32階建てのホテルです。敷地面積911.82㎡に対して建築面積521.14㎡というスマートなペンシルホテルです。元々は「ホテルWBF新大阪スカイタワー」として開業しましたがアパホテルが買収しています。
物件概要
- 名称
- アパホテル〈新大阪駅タワー〉
- 旧名称
- ホテルWBF新大阪スカイタワー
- 住所
- 大阪府大阪市淀川区西中島7丁目4-20
[googleMap] [Yahoo!] [Mapion] - 最寄駅
- 新大阪
- 主要用途
- ホテル
- 総客室数
- 400室
- 階数
- 地上32階・塔屋1階
- 高さ
- 99.6m(最高部高さ105.55m)
- 構造
- 鉄骨造
- 敷地面積
- 912㎡
- 建築面積
- 521㎡
- 延床面積
- 8,174㎡
- 建築主
- ホワイト・ベアーファミリー
- 設計者
- 日企設計
- 施工者
- 日本国土開発
- 着工年月
- 2017年09月(平成29年09月)
- 竣工年月
- 2019年06月(令和元年06月)
- 開業日
- 2019年10月(令和元年10月)

